Description
Nouveau projet immobilier à Jemeppe
Liège Estate, en partenariat privilégié avec General Construct (fort de 40 ans d'expérience et de service après-vente), vous propose un projet immobilier exclusif situé à Jemeppe, à seulement 1km de la gare et de l'échangeur de Jemeppe, offrant une opportunité exceptionnelle pour les investisseurs et les particuliers.
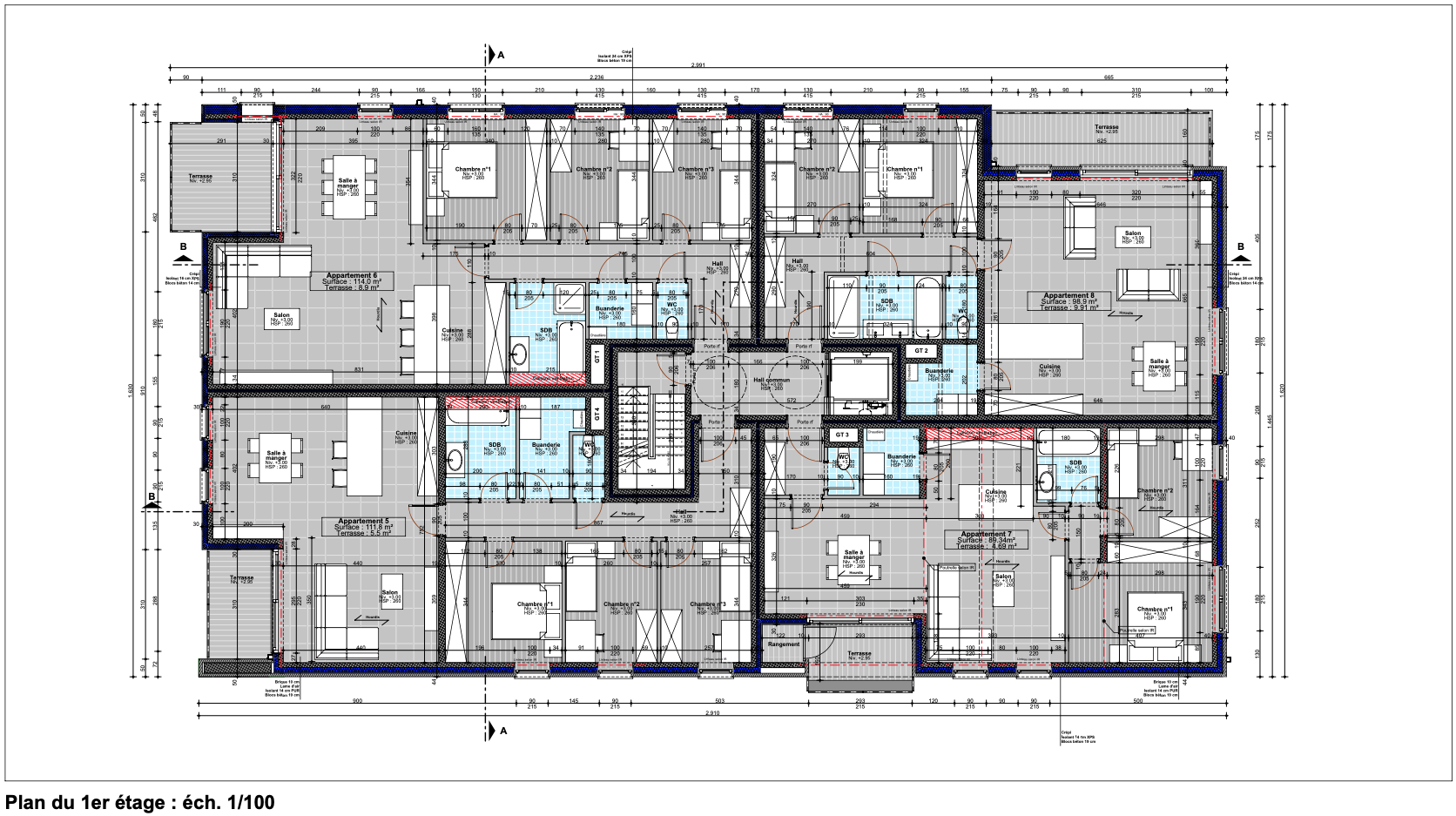
1 résidence, 11 appartements
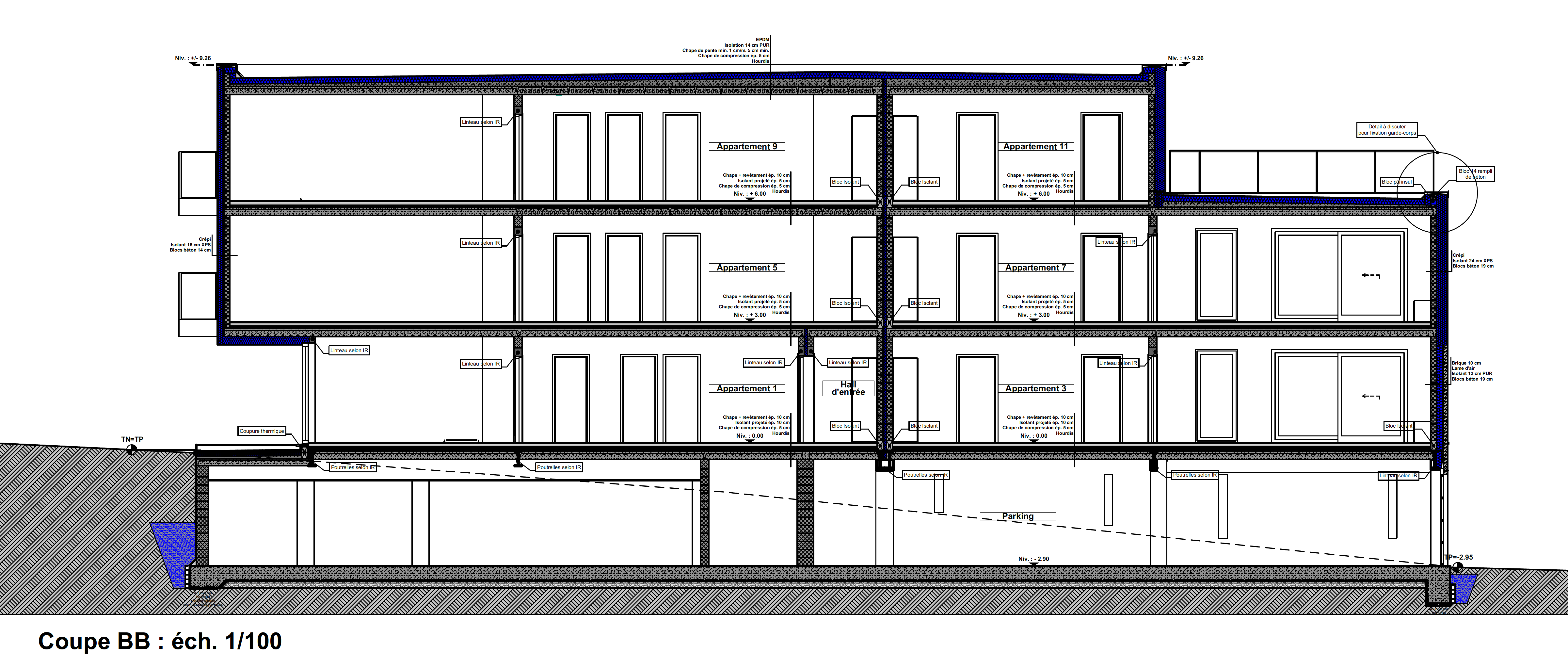
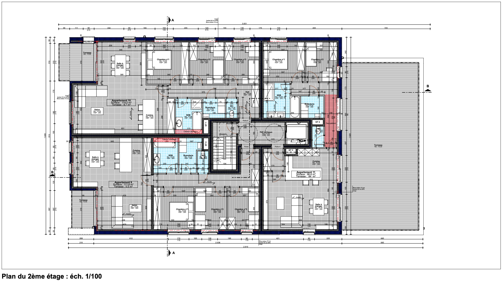
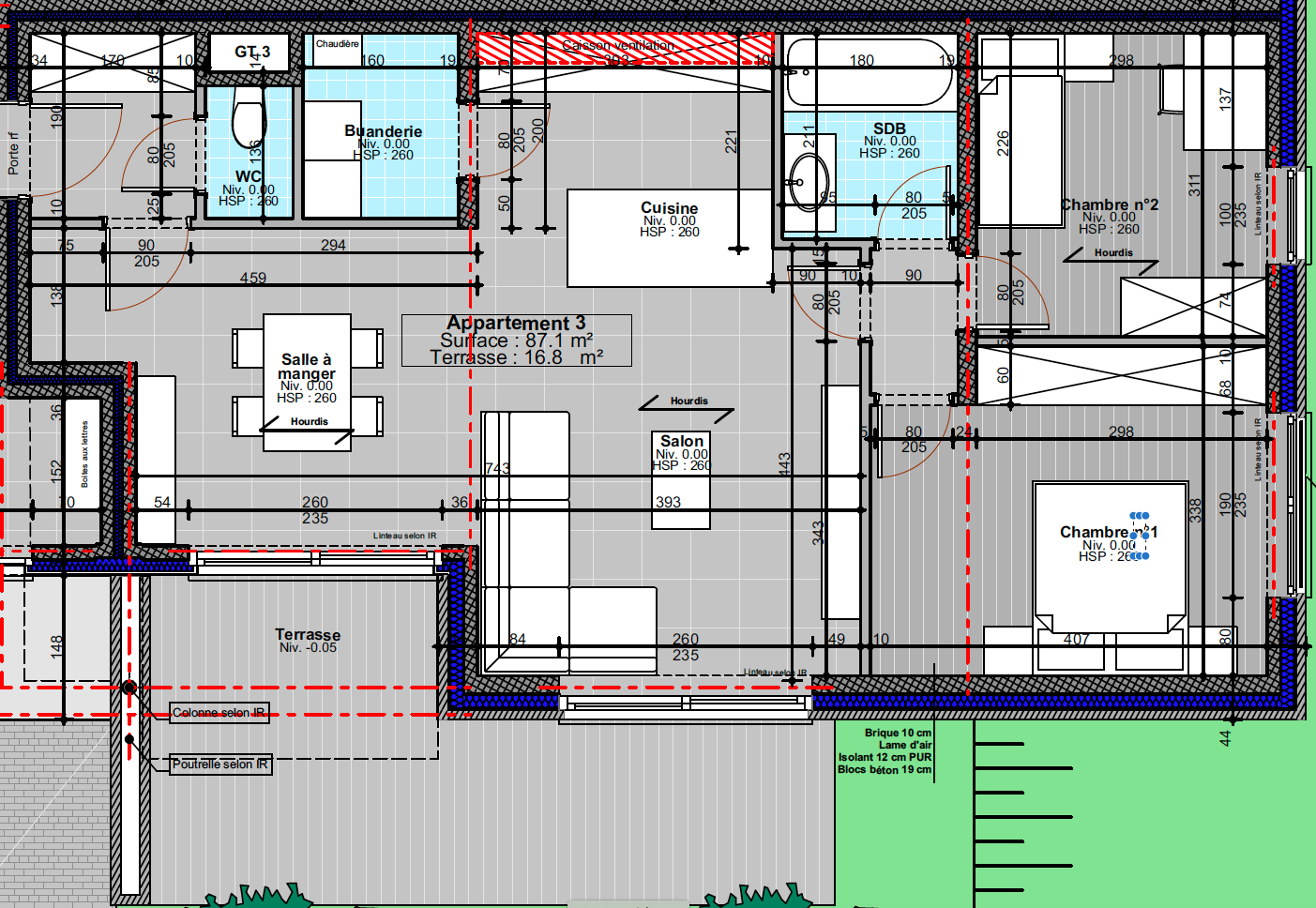
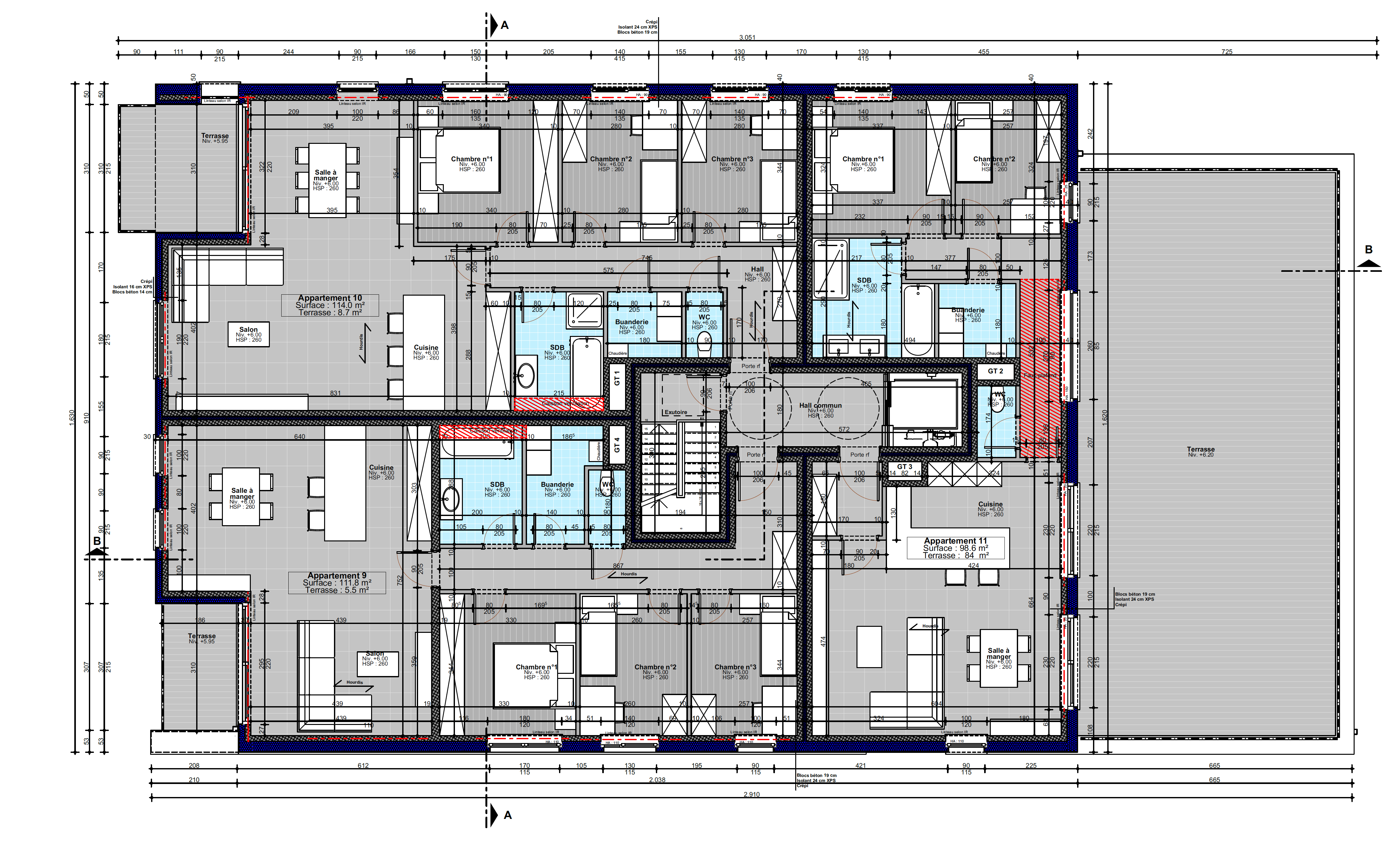
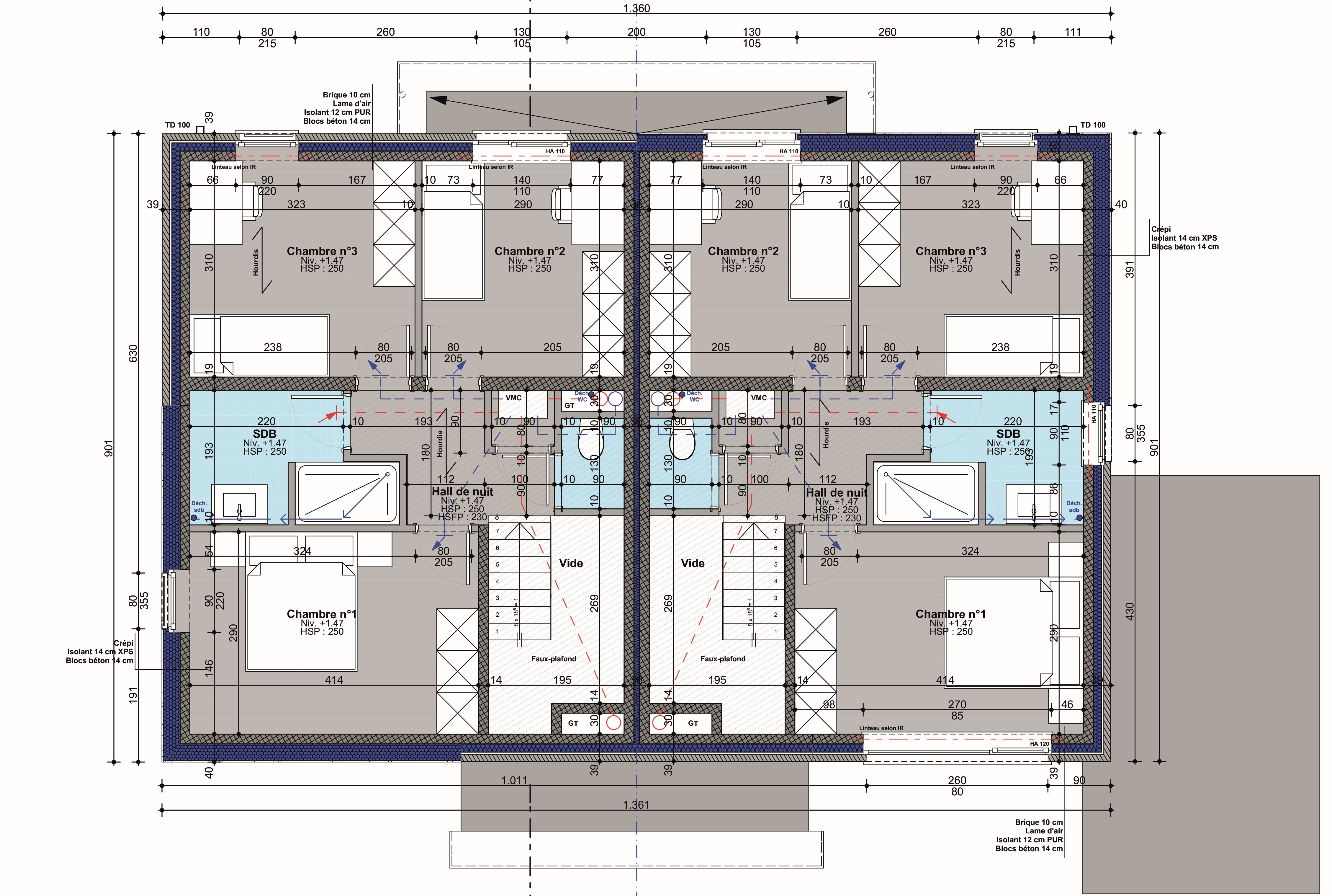
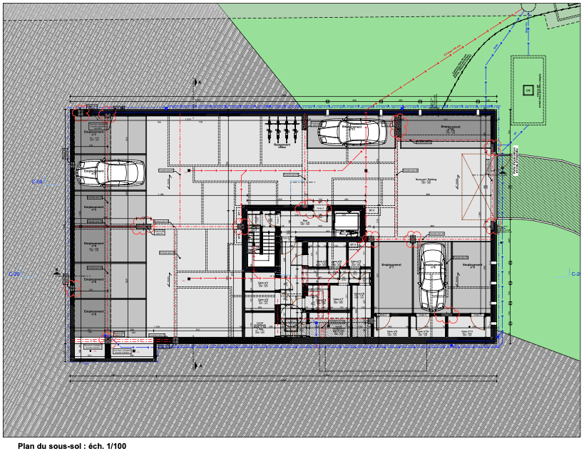
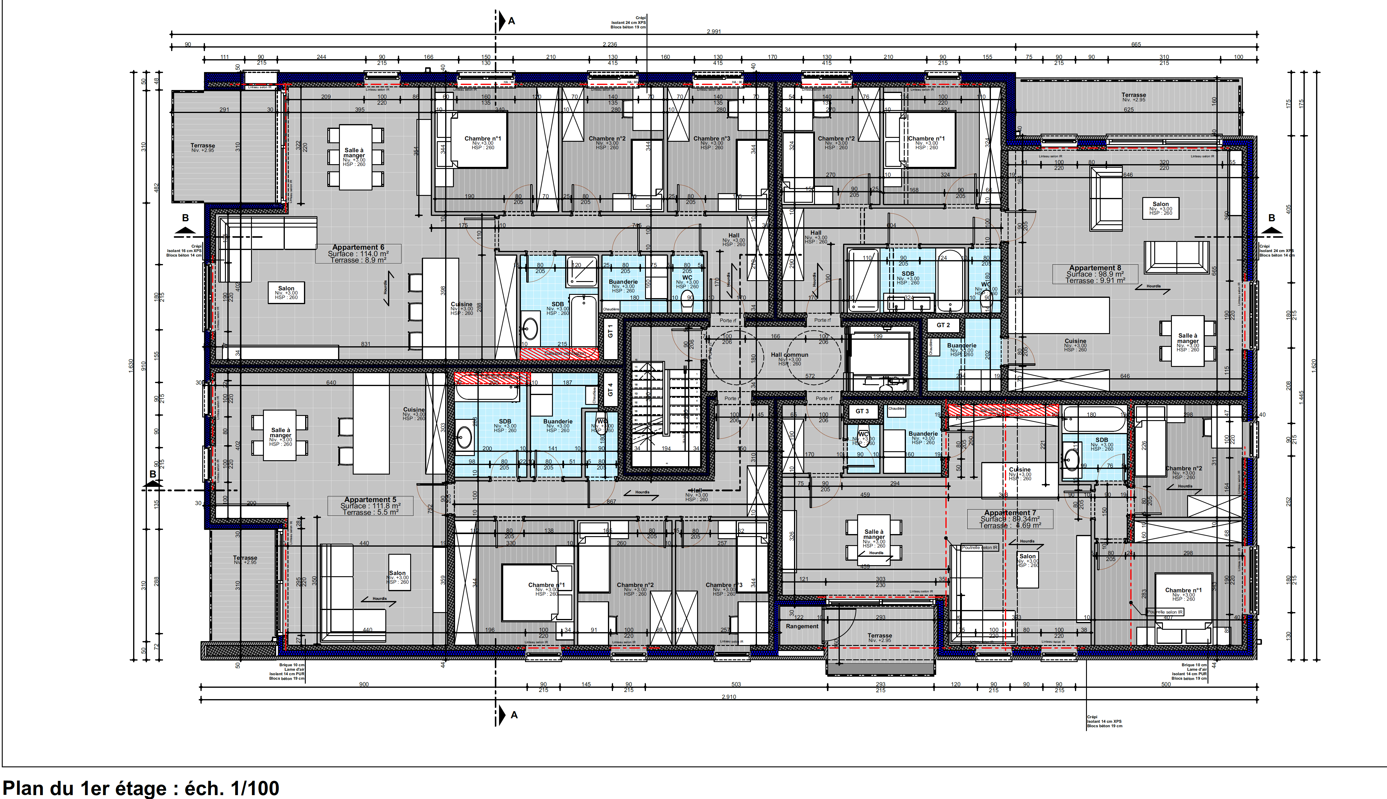
Ce projet comprend 11 appartements neufs. Les appartements, variant entre 80 et 110m2, offrent des configurations de 2 ou 3 chambres, avec terrasse et/ou jardin, cave et garages/emplacements, tout en garantissant confort et qualité de vie.
Un showroom exclusif
Chaque appartement est personnalisable, avec un accompagnement complet pour les finitions, visible dans notre salle d'exposition à Liège sur rendez-vous.
Dernières normes PEB
Bénéficiez également d'une isolation de pointe, de double vitrage super isolant, de ventilation Double flux, et d'une chaudière individuelle gaz à condensation pour un confort thermique et acoustique optimal. Profitez de notre emplacement stratégique, avec un accès facile aux grands axes et aux commodités essentielles à proximité immédiate.
Un service sur-mesure
Nous offrons une gamme de services VIP, incluant l'expertise et la vente de votre logement existant, des options de financement personnalisées, une assistance administrative complète et même l'organisation de votre déménagement.
Garantie décennale et protection Loi Breyne
Vous êtes couvert contre tous risques d’insolvabilité, construction, humidité,...
Envie d’en savoir plus ?
N’hésitez pas à nous contacter par mail à demande@liegeestate.be ou nous joindre par téléphone au +32(4)378.41.00
Adresse :
Rue Xhavee - 4101 Jemeppe
Documents
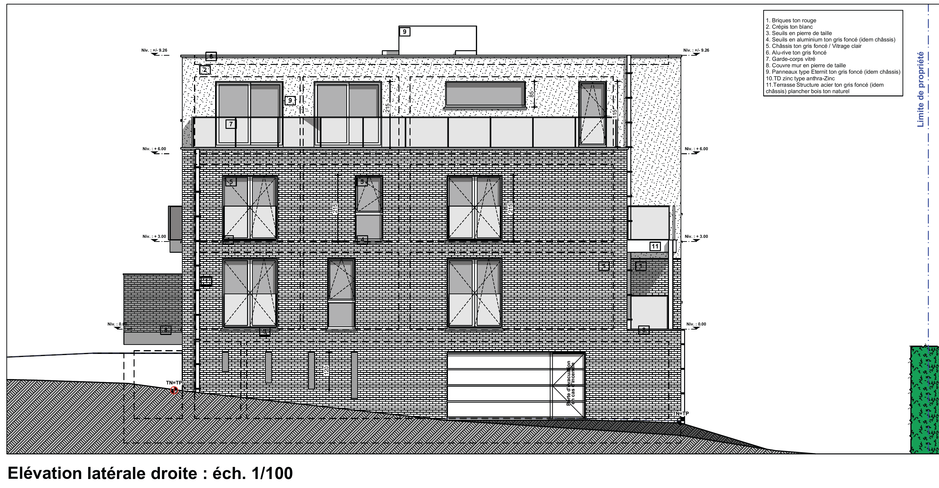
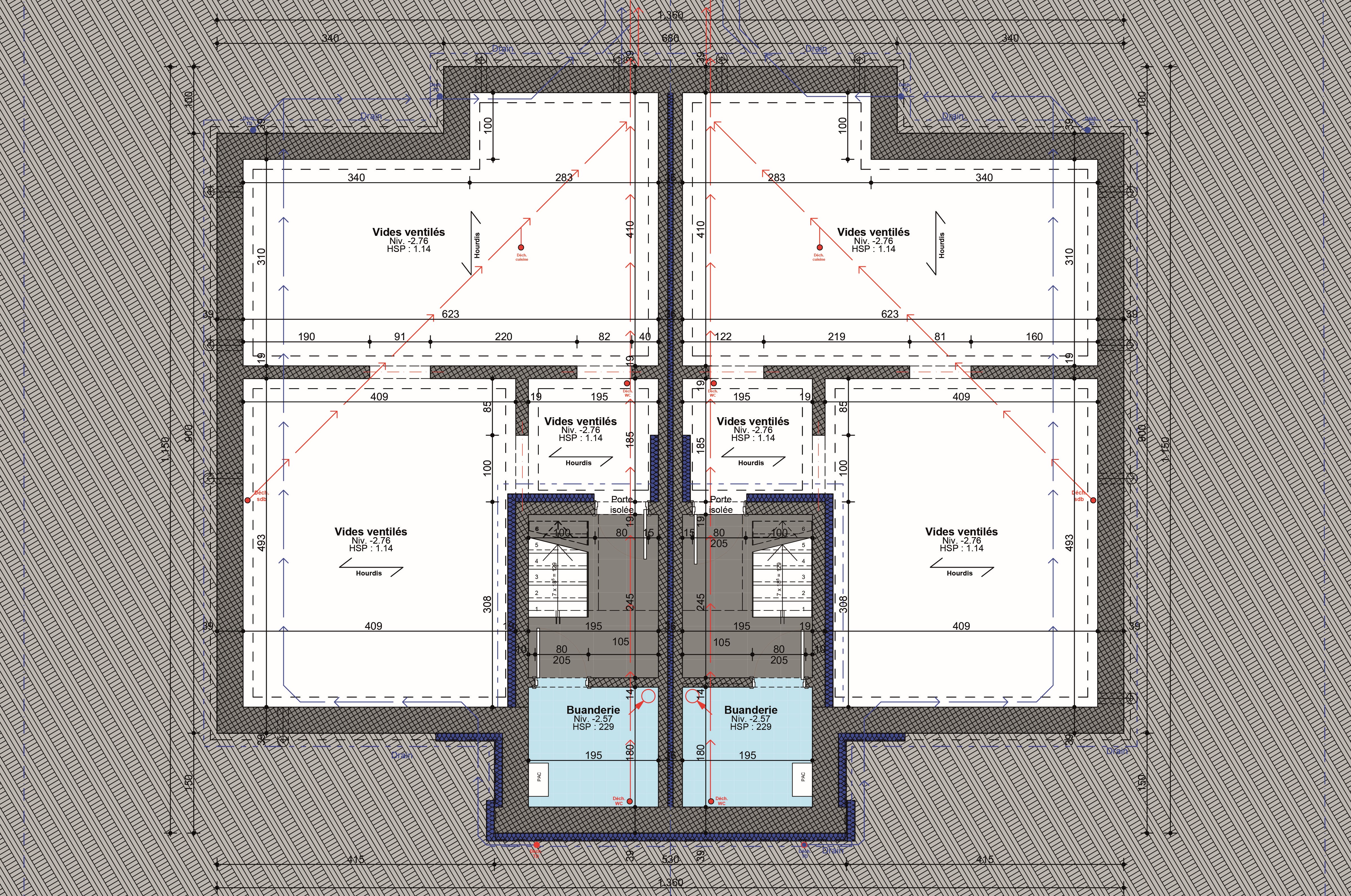
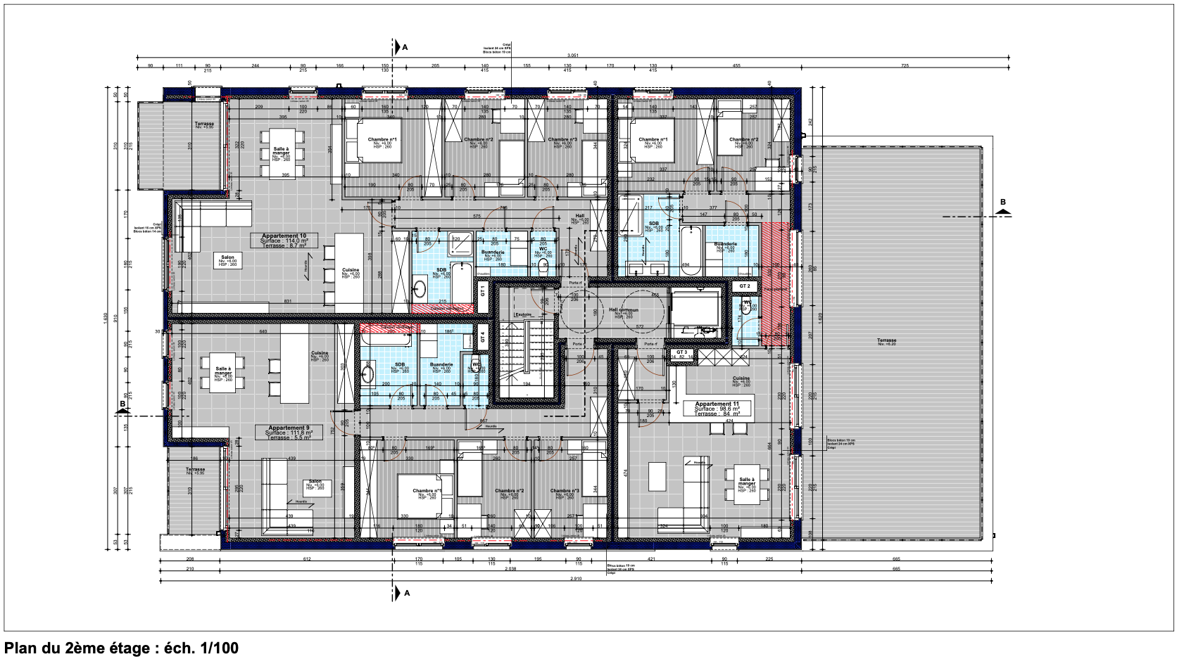
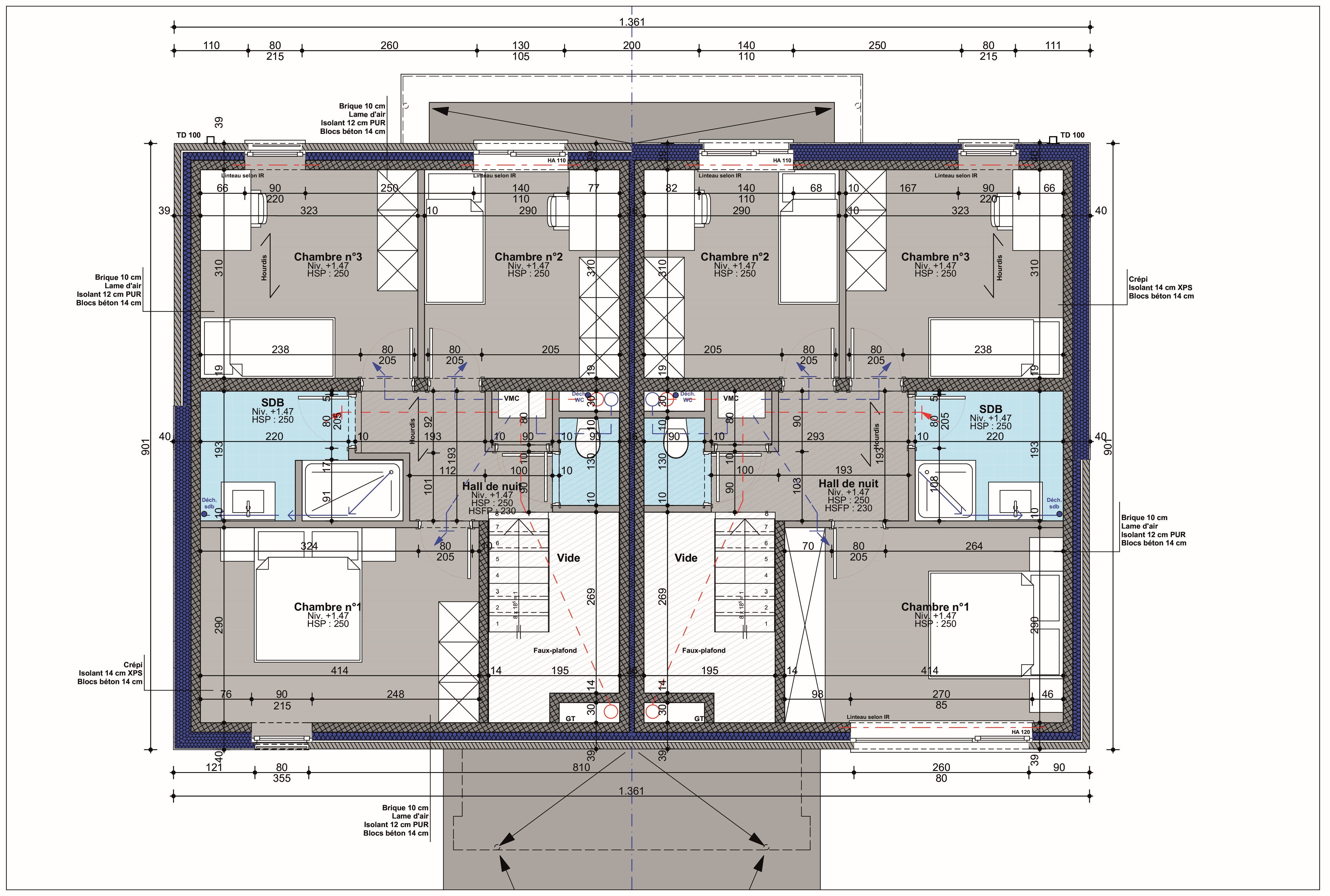
Plan 1er etage.png Plan 2eme etage.png Plan de coupe BB.png Plan elevation arriere.png Plan elevation avant.png Plan elevation laterale droite.png Plan elevaton avant.png Plan rez-de-chaussee.png Plan sous-sol.png Lots 1 et 2 etages.jpg Lots 1 et 2 facades arrieres.jpg Lots 1 et 2 facades avants.jpg Lots 1 et 2 facades laterales droite.jpg Lots 1 et 2 facades laterales gauche.jpg Lots 1 et 2 Rez.jpg Lots 1 et 2 VV.jpg Lots 3 et 4 etages.jpg Lots 3 et 4 facades arrieres.jpg Lots 3 et 4 facades avants.jpg Lots 3 et 4 facades laterales droite.jpg Lots 3 et 4 facades laterales gauche.jpg Lots 3 et 4 Rez.jpg Lots 3 et 4 VV.jpg Plan Implantation.jpg Appaartement 3.png Plan 1er etage.png Plan 2eme etage.png Plan RDC.png Plan sous-sol.png Plan general.pdf Plan 1er etage.png Plan 2eme etage.png Plan RDC.png Plan sous-sol.png Plans projet.pdf
Caractéristiques
Général
| Référence | 5896075 |
|---|---|
| Catégorie | Appartement |
| Meublé | Non |
| Nombre de chambres | 3 |
| Nombre de salles de bain | 1 |
| Garage | Oui |
| Terrasse | Oui |
| Parking | Oui |
| Surface habitable | 106,4 m² |
| Disponibilité | à la livraison |
Bâtiment
| Année de construction | 2024 |
|---|---|
| Nombre de garage | 1 |
| Parking intérieur | Oui |
| Parking extérieur | Oui |
Equipement de base
| Accès handicapés | Oui |
|---|---|
| Chauffage (ind/coll) (type (ind/coll)) | individuel |
| Ascenseur | Oui |
| Double vitrage | Oui |
| Chauffage (type) | gaz (chau. centr.) |
| Type d'ascenseur | personnes |
| Double vitrage (type) | isol. thermique et acoustique |
| Parlophone | Oui |
| Videophone | Oui |
Divers
| Buanderie | Oui |
|---|---|
| Cave | Oui |
En chiffres
| Nbre de toilette(s) (nombre) | 1 |
|---|---|
| Nombre de sdd | 1 |
| Chambre 1 (surface) | 11.5 m² |
| Chambre 2 (surface) | 9.5 m² |
| Chambre 3 (surface) | 9.5 m² |
| Nbre de terrasse(s) (nombre) | 1 |
| Salle de séjour (surface) | 29.2 m² |
| Cuisine (surface) | 7 m² |
| Orientation de la terrasse 1 | sud |
| Surface balcony 1 | 19.3 m² |
Domaine juridique
| Affectation urbanistique (type) | Zone d'habitat |
|---|---|
| Servitude | Non |
| Permis de bâtir | Oui |
| Destination bâtiment (type) | privé - habitation |
| Affectation urbanistique | zone d'habitat |
À proximité
| Magasins (distance (m)) | 1500 |
|---|---|
| Écoles (distance (m)) | 1000 |
| Transports en commun (distance (m)) | 500 |
| Magasins | Oui |
| Ecoles | Oui |
| Transports en commun | Oui |
| Autoroute | Oui |
| Autoroute (distance (m)) | 500 |
Equipement extérieur
| Piscine | Non |
|---|
Charges & Rendement
| Sous régime TVA | Oui |
|---|---|
| Loué | Non |
Sécurité
| Contrôle d'accès | Oui |
|---|---|
| Sécurité | Oui |
Raccordements
| Égouts | Oui |
|---|---|
| Électricité | Oui |
| Gaz | Oui |
| Câbles téléphoniques | Oui |
| Eau | Oui |
Équipements techniques
| Châssis (type) | pvc |
|---|
Spécificités terrain
| Type d'environnement | calme |
|---|---|
| Type d'environnement 2 | résidentiel |
| Exposition de la façade avant | est |
| Risque d'inondation (type innondation) | pas situé en zone inondable |
Certificats / Attestations
| Attestation du sol | Oui |
|---|
Caractéristiques Principales
| Surface de terrasse 1 | 19.3 m² |
|---|
Nom, catégorie & situation
| Bien en construction | Oui |
|---|
Certificats énergétiques
| Label PEB (classe) | B |
|---|
