Beschrijving
Adres :
Rue Xhavee - 4101 Jemeppe
Documenten
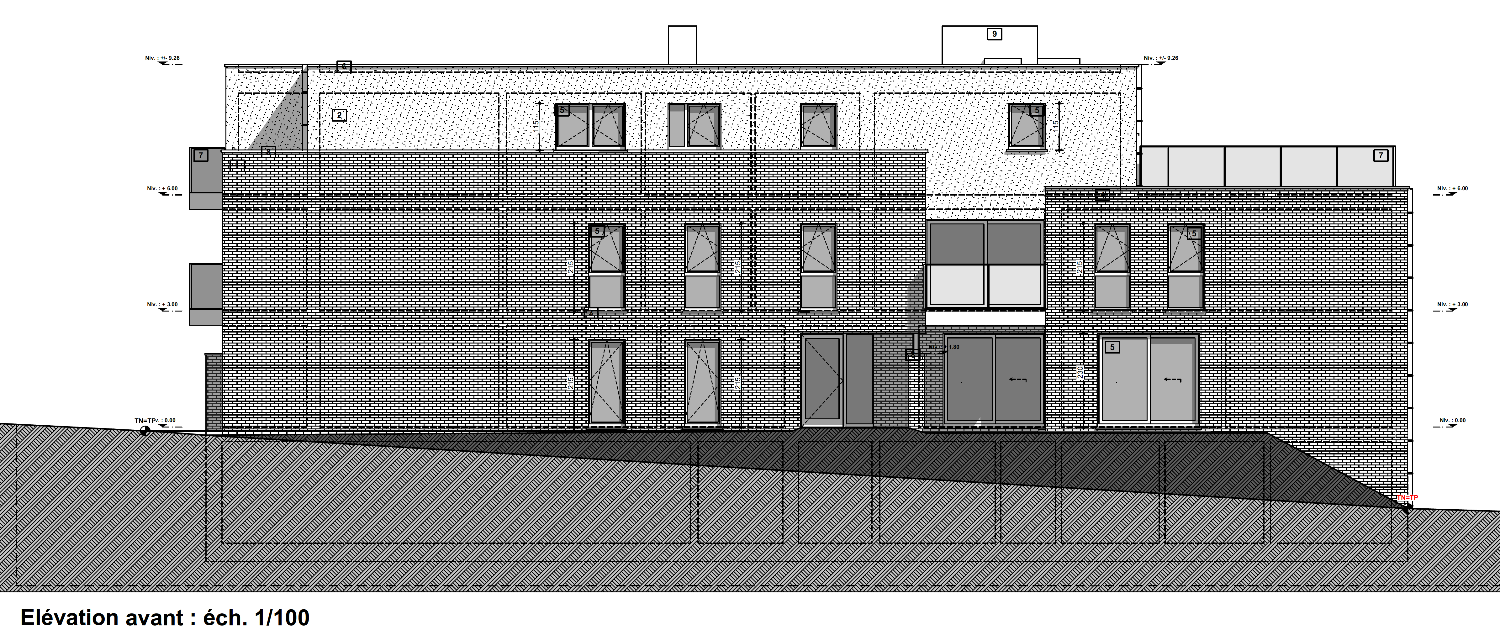
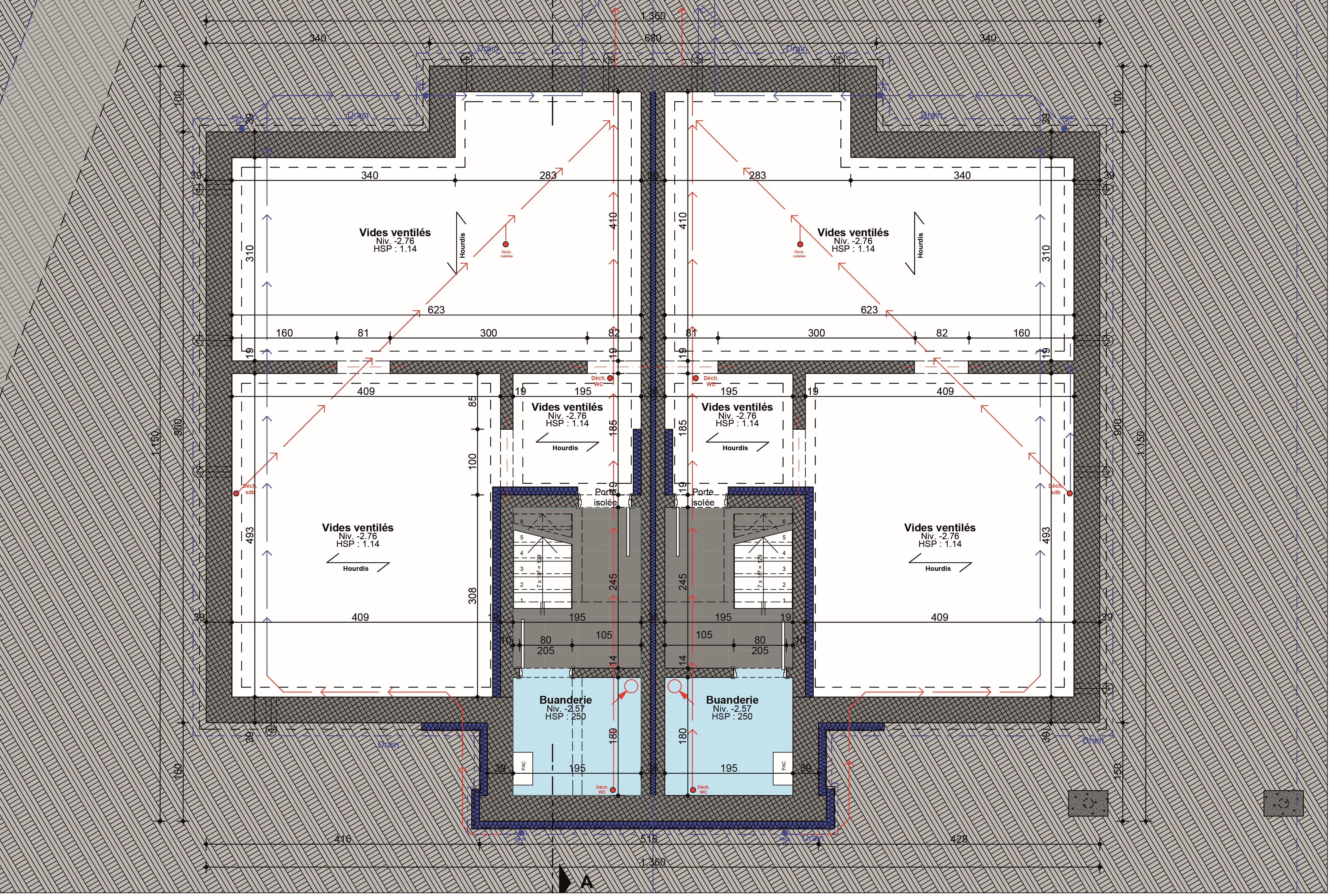
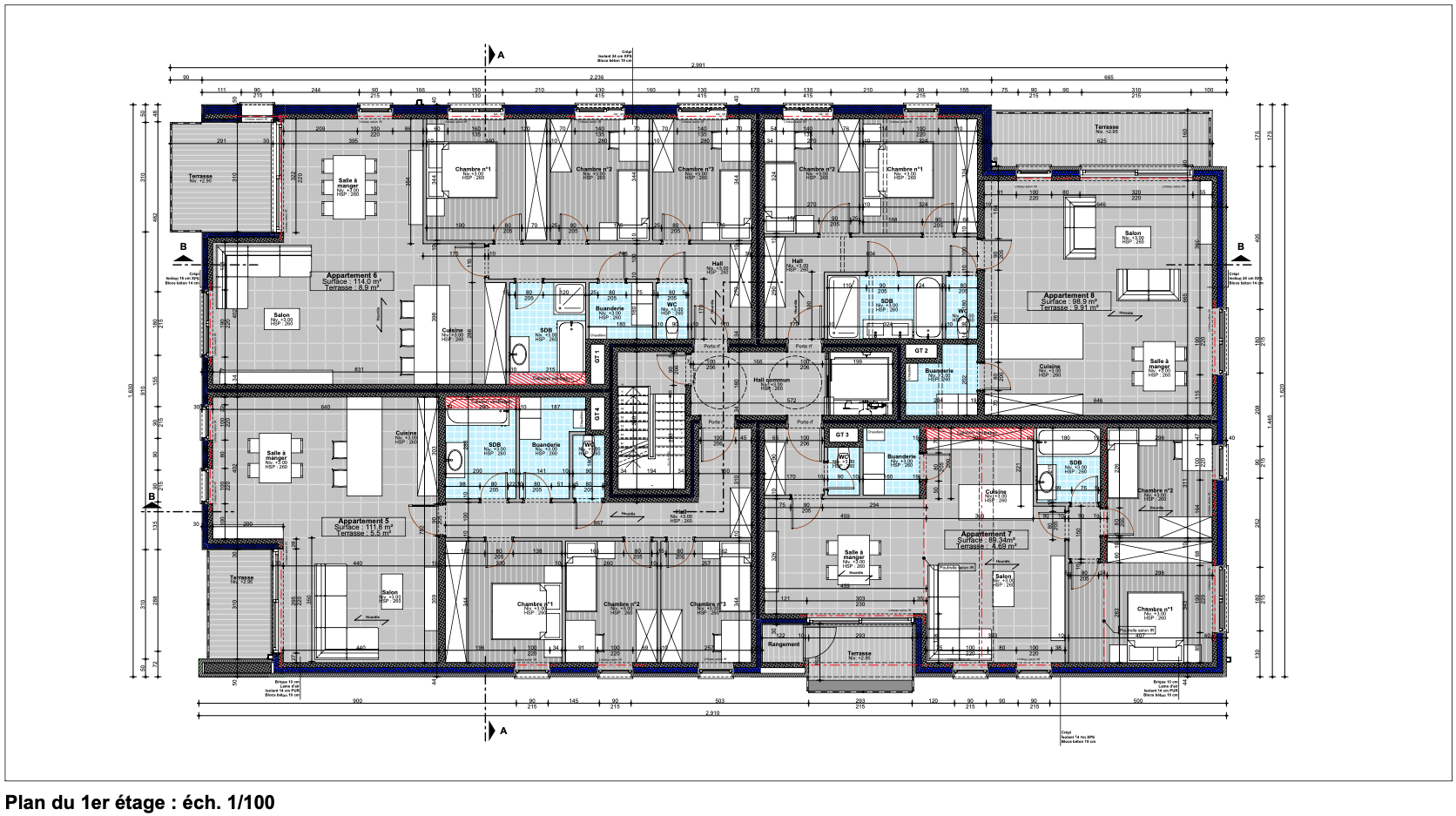
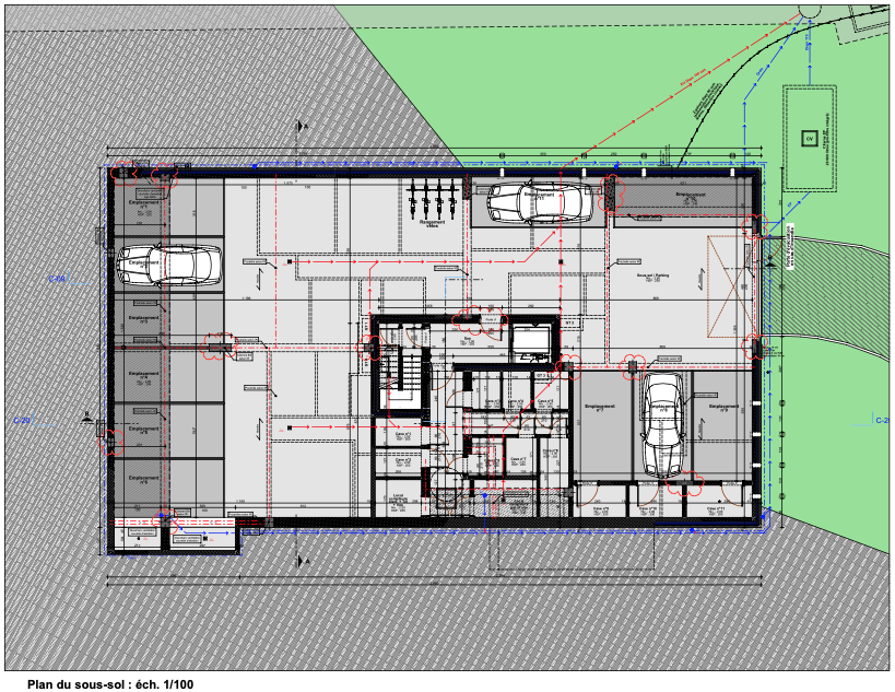
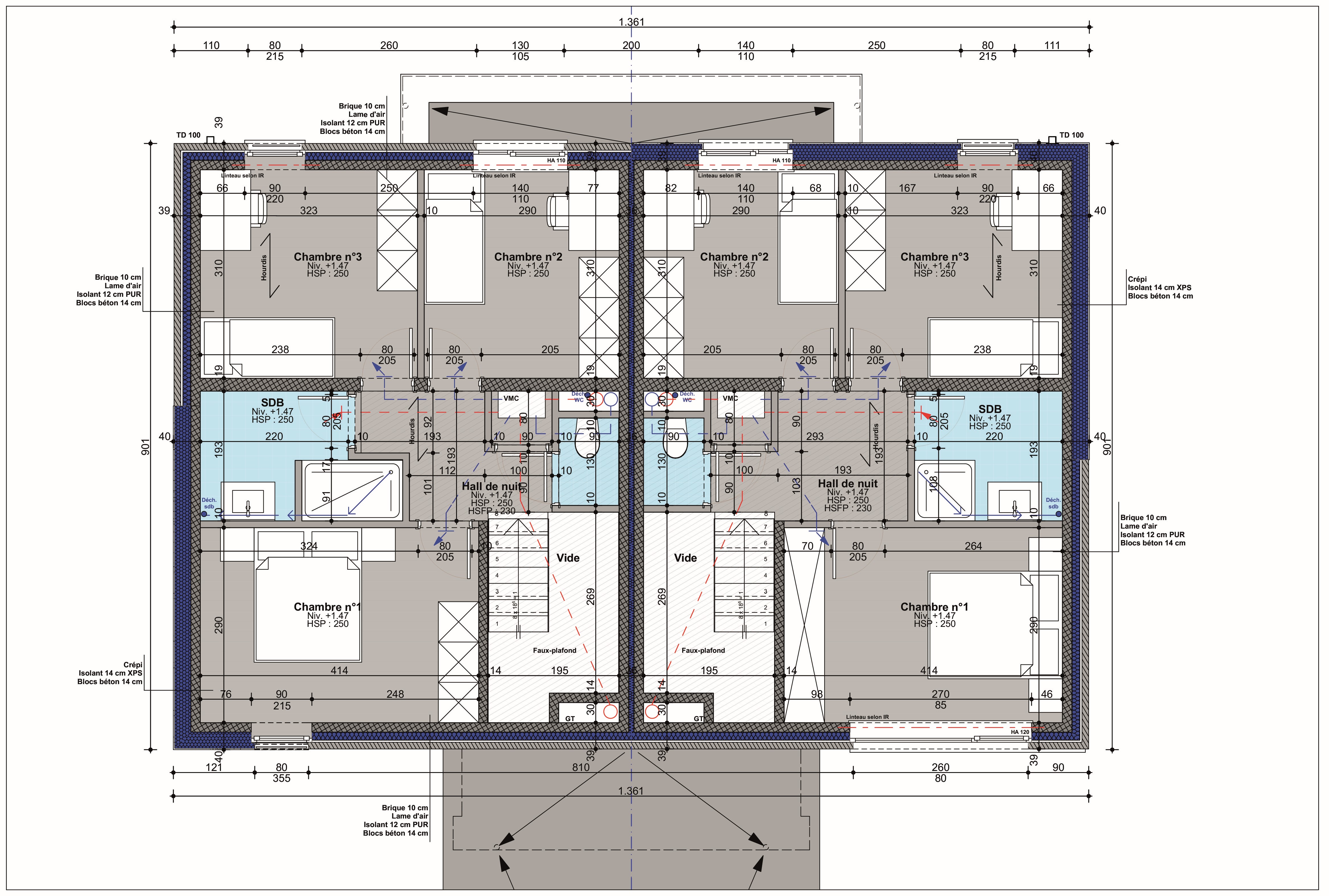
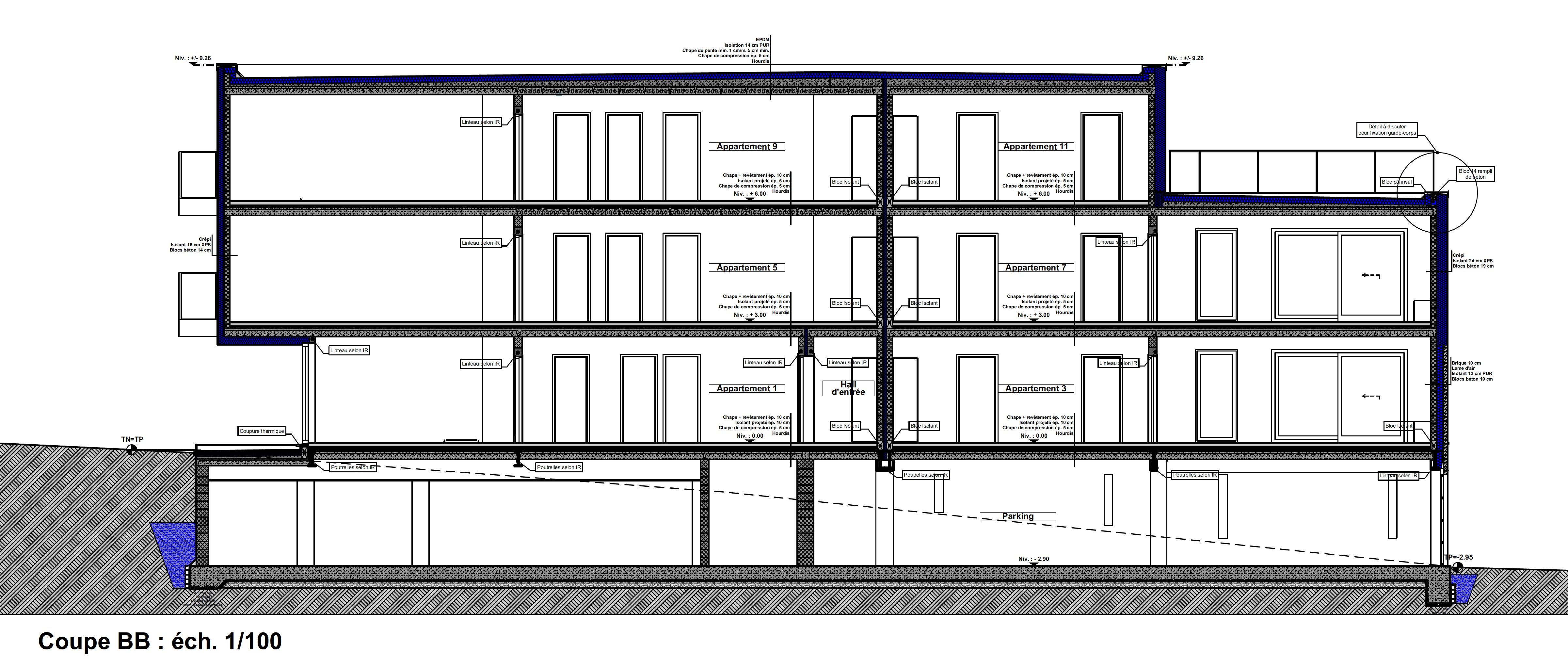
Plan 1er etage.png Plan 2eme etage.png Plan de coupe BB.png Plan elevation arriere.png Plan elevation avant.png Plan elevation laterale droite.png Plan elevaton avant.png Plan rez-de-chaussee.png Plan sous-sol.png Lots 1 et 2 etages.jpg Lots 1 et 2 facades arrieres.jpg Lots 1 et 2 facades avants.jpg Lots 1 et 2 facades laterales droite.jpg Lots 1 et 2 facades laterales gauche.jpg Lots 1 et 2 Rez.jpg Lots 1 et 2 VV.jpg Lots 3 et 4 etages.jpg Lots 3 et 4 facades arrieres.jpg Lots 3 et 4 facades avants.jpg Lots 3 et 4 facades laterales droite.jpg Lots 3 et 4 facades laterales gauche.jpg Lots 3 et 4 Rez.jpg Lots 3 et 4 VV.jpg Plan Implantation.jpg Appartement 1.png Plan 1er etage.png Plan 2eme etage.png Plan RDC.png Plan sous-sol.png Plan general.pdf Plan 1er etage.png Plan 2eme etage.png Plan RDC.png Plan sous-sol.png Plans projet.pdf
Karakteristieken
Algemeen
| Referentie | 5896041 |
|---|---|
| Categorie | Appartement |
| Gemeubeld | Nee |
| Aantal kamers | 2 |
| Aantal badkamers | 1 |
| Garage | Ja |
| Terras | Ja |
| Parking | Ja |
| Bewoonbare oppervlakte | 90,1 m² |
| Beschikbaarheid | bij oplevering |
Gebouw
| Bouwjaar | 2024 |
|---|---|
| Aantal garages | 1 |
| Parking binnen | Ja |
| Parking buiten | Ja |
Basisuitrusting
| Voorzieningen gehand. | Ja |
|---|---|
| Type verwarming (type (ind/coll)) | individueel |
| Lift | Ja |
| Dubbele beglazing | Ja |
| Type verwarming | gas cv |
| Type lift | personenlift |
| Type dubbele beglazing | thermische en akoestische onderbreking |
| Parlofoon | Ja |
| Videofoon | Ja |
Diverse
| Wasplaats | Ja |
|---|---|
| Kelder | Ja |
In cijfers
| Toiletten - aantal | 1 |
|---|---|
| Aantal douchekamers | 1 |
| Slaapkamer 1 (oppervlakte) | 13.2 m² |
| Slaapkamer 2 (oppervlakte) | 8.4 m² |
| Terras - aantal | 1 |
| Woonkamer (oppervlakte) | 32.8 m² |
| Terras 1 - oriëntatie | zuid |
| Surface balkon 1 (oppervlakte) | 19.5 m² |
Juridisch veld
| Terrein - type | |
|---|---|
| Servitude | Nee |
| Bouwvergunning | Ja |
| Bestemming gebouw - type | privé - woning |
| Terrein - bestemming | woongebied |
Woonomgeving
| Winkels (afstand (m)) | 1500 |
|---|---|
| Scholen (afstand (m)) | 1000 |
| Openbaar vervoer (afstand (m)) | 500 |
| Winkels in de buurt | Ja |
| Scholen in de buurt | Ja |
| Openbaar vervoer in de buurt | Ja |
| Autostrade in de buurt | Ja |
| Autostrade (afstand (m)) | 500 |
Buitenkant
| Zwembad | Nee |
|---|
Lasten & opbrengst
| Onder BTW stelsel | Ja |
|---|---|
| Bewoner | Nee |
Veiligheid
| Toegangscontrole | Ja |
|---|---|
| Bewaking | Ja |
Aansluitingen
| Riolering | Ja |
|---|---|
| Elektriciteit | Ja |
| Gas | Ja |
| Telefoonbekabeling | Ja |
| Water | Ja |
Technische uitrusting
| Type schrijnwerkerij | pvc |
|---|
Omgeving
| Type buurt | rustig |
|---|---|
| Type buurt 2 | residentiële wijk |
| Oriëntatie van de voorgevel | oost |
| O-Peil (overstromingstype) | niet gelegen in een overstromingsgevoelig gebied |
Certificaten
| Bodemattest | Ja |
|---|
Hoofdkenmerken
| Terras 1 (oppervlakte) | 19.5 m² |
|---|
Naam, Categorie & Ligging
| Pand in opbouw | Ja |
|---|
Energie
| EPC-klasse | B |
|---|
